Дизайн-проєкт
Наша робота над дизайном інтер'єру починається зі знайомства з вашим баченням свого "ідеального будинку". У цьому інтер'єрі вам має бути комфортно. Ми намагаємося максимально врахувати ваші побажання і пропозиції по стилістиці і функціональності приміщень, додаючи красу і гармонію, розраховуючи ергономічність, ми створюємо ваш стиль.
Далі ми робимо виміри і вивчаємо технічні особливості об'єкту. На основі отриманих даних, надаємо варіанти планувальних рішень. Після затвердження планування, ми робимо візуалізацію інтер'єру.
Після затвердження візуального ряду, ми робимо дизайн-проєкт. Mи здійснюємо підбір матеріалів і предметів обстановки. Ви завжди можете розраховувати на наш багатий досвід в цій сфері діяльності, напрацьовану нами базу виробників і постачальників і наш смак.
Ми також надаємо "дистанційний" варіант послуг. У цьому випадку спілкування з вами може протікати в телефонному режимі і за допомогою інтернету (листування через пошту і "skype"- конференції).
Склад дизайн-проєкту
План обміру
План демонтажу
План монтажу
План з розташуванням меблів
План стель
План розміщення світильників
План розключень
План розміщення розеток
План підлог, плінтусів, відчинення дверей
План розміщення сантехніки, побутової техніки та кондиціонера
План розміщення теплої підлоги
Маркувальний план
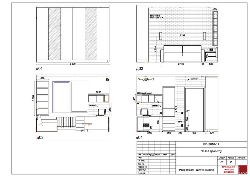
Розгортки стін приміщень: покриття, меблі, електрика
Відомість оздоблення приміщень
3D Візуалізації
Дизайн-проєкт друкується в двох примірниках в форматі А3 і має вигляд великого альбому чи книги. Це повний і докладний посібник для будівельників. Усі планування видаються з узгодженням з замовником.



План обміру
Ми ретельно обмірюємо ваше приміщення і робимо його план, щоб працювати з реальними розмірами.

План демонтажу
Досить часто до нас звертаються люди, яких не задовольняє планування їхньої квартири чи будинку, їм не вистачає окремих приміщень чи просто комфорту і зручності. Дизайнер може створити маленьке диво, наприклад, перетворити однокімнатну квартиру на трикімнатну. Але, звичайно, для цього буде потрібно знести кілька перегородок і побудувати нові. Плани демонтажу і монтажу покажуть будівельникам, де це зробити.

План монтажу

План з розташуванням меблів
Вдале планування - більша частина роботи. Але, для більшого розуміння задумів дизайнеру, план розміщення меблів потрібно розглядати разом із листами розгорток стін приміщень та візуалізаціями.

План стель
На цьому прикладі стелі прості - підвісні, опущені рівно на стільки, щоб без проблем можна було розмістити в них точкові світильники. В тих проєктах, де використовуються натяжні стелі, приховане підсвітлення, багаторівневі стелі чи стелі складної конфігурації до цього планування додаються розрізи складних місць та, за потребою, сітки фігурних елементів стель.

План світильників
План світильників - одна зі складових розводки електрики по приміщенню. Розглядається сумісно з планом розключень (розводки світильників на вимикачі) і відомістю оздоблення приміщень, де є підрахунок кількості світильників.

План розключень
Точне місце розташування вимикачів позначається на листах розгорток стін. Це ж стосується розеток.

План розміщення розеток

План підлог, плінтусів, відчинення дверей
На цьому планові вказується за потребою типи покриттів для підлоги, напрямок їх розкладування, розміри і типи дверей, місце розташування плінтусів (кількість можна уточнити у відомості оздоблення приміщень).

План розміщення сантехніки, побутової техніки й кондиціонера
Це так званий план "мокрих місць"- план розміщення сантехніки. Ми зазвичай поєднуємо його з планом розміщення побутової техніки і кондиціонерів. Якщо в приміщеннях багато техніки, для неї виділяється окремий аркуш проєкту.

План розміщення теплої підлоги
Не завжди буває в складі проєкту, але іноді ми додаємо його, в якості рекомендації.

Маркувальний план
Це план, що допомагає розуміти розгортки стін. Зазвичай, стіни нумеруються за годинниковою стрілкою, починаючи з верхнього лівого кута.

Розгортка стін вітальні-кухні: покриття, меблі, електрика
Розгортки стін бувають більш чи менш докладні. Якщо в приміщенні багато деталей чи приладів, складне оздоблення, виділяються окремі листи для покриттів, окремі для меблів і окремі для електрики.

Розгортка стін спальні: покриття, меблі, електрика

Розгортка стін дитячої кімнати: покриття, меблі, електрика

Розгортка стін коридору: покриття, меблі, електрика

Розгортка стін санвузлу: розкладка плитки
Під розклад плитки виділяється окремий лист. Плитка розкладається в масштабі, на кресленні указуються напрям розкладки і типи плитки. Є таблиця із точним підрахунком кількості плитки.

Розгортка стін санвузлу: меблі, електрика
Електрику в санвузлі розміщують з урахуванням розкладки плитки і розміщення сантехніки, тому це креслення видається після їхньої закупки.

Відомість оздоблення приміщень
Стандартна відомість оздоблення приміщень включає в себе підрахунок розеток, вимикачів, світильників, метража плінтуса тощо.За бажанням замовників в неї можуть включатися ще якісь параметри.

3D Візуалізація вітальні-кухні
Візуалізації друкуються в кольорі. Звичайно, замовник отримує їх і в електронному вигляді в гарної якості.

3D Візуалізація спальні

3D Візуалізація дитячої кімнати

3D Візуалізація коридору

3D Візуалізація санвузлу







