ukr  rus  eng

банер дизайн

 

  • головна
  • послуги
  • ціни
  • про нас
  • контакти
Головна
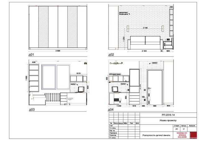
17 Розгортка стін дитячої кімнати: покриття, меблі, електрика
  • Дизайн проєкт
  • 3d моделінг
  • Cупутня рекламна продукція
  • Ремонт
  • Кераміка
  • Ідеї декору
Громадські інтер'єри

Розробка дизайну вітрин магазину Giesswein ТРЦ "Атмосфера"Дизайн салону по ремонту мобільних телефонівДизайн інтер'єру продуктового магазину пр.П.Григоренка
  • Кафе в стилі лофт
  • Дизайн ресторану на кораблі
  • Паб в Броварах
  • Шаурмична в Вишгороді
  • МАФ Coffee Drive
  • Розробка стадіону ФК "Шахтар"
  • Дизайн приймальні хімчистки
  • МАФ "Potatoshka"
  • Фотостудія-салон літака
  • Ресторан на кораблі св.Андрій
  • Дизайн фасаду "MavaKava"
  • Дизайн стоматологічної клініки
  • МАФ "Toucan coffee"
  • Дизайн мережі кав'ярень WOWkava
  • МАФ GOODzyk Kava
  • Дизайн фітнес-бару
  • Ресторан в стилі стімпанк
  • Бар у фитнес клубі СпортЛенд
  • МАФ у стилі прованс
  • Дизайн літнього майданчика кафе
  • Дизайн протеїн-бару
  • Дизайн вітрин магазину
  • Кафе-шаурма
  • Дизайн аптеки
  • Дизайн салону авто
  • Антикафе у Житомирі
  • Кафетерій у фітнес-барі
  • Магазин-салон у стилі лофт
  • *Кафе в українському стилі
  • Кафетерій на Іллінській
  • *Виставковий салон
  • Дизайн продуктового магазину

 

Купуєте квартиру?


Підбираємо оптимальний варіант планування.
Детальніше >>

Приватні інтер'єри

Дизайн холу. Квартира в "Парковому мicтi"Таунхаус в п.Томіліно. 2 поверх. Дизайн кухні-вітальні в стилі провансКвартира в ЖК "Ліпінка-2". Дитяча
  • Дизайн квартири з переплануванням
  • Дизайн будинку в Гостомелі
  • Дизайн двоповерхового будинку
  • Дизайн квартири-студії
  • Квартира в ЖК "Галактика"
  • Вітальня в скандинавському стилі
  • 1-к квартира в ЖК "ПаркЛенд"
  • 3-кімнатна квартира з 1-кімнатної
  • Інтер'єр у стилі лофт
  • 3к-квартира в ЖК"Сонячна Брама"
  • Квартира в ЖК "Міністерський"
  • Кімната відпочинку в стилі лофт
  • Квартира по вул.Павловській
  • Будинок у с.Старі Петрівці
  • 2-ярусна квартира на Саксаганського
  • Квартира в с.Петрівське
  • Дизайн квартири на Осокорках
  • 3-к квартира на Оболоні
  • 4-к квартира в "Парковому мicтi"
  • Квартира на Чоколівському
  • Сталінка на П.Мирного
  • 4-к квартира в стилі АРТ-ДЕКО
  • *Квартира на пр.Перемоги
  • *Квартира на Севастопольскій площі
  • *Квартира на пр.Ломоносова
  • Котедж у центрі Дніпра
Дизайн от визитки до интерьера (044)2233998 0679532322
barvadesign © barvadesign@gmail.com Киев